OUTLINE
物件情報
| 物件ID | 20240022 | ||
|---|---|---|---|
| 物件名 | 高崎市岩鼻町1期 新築分譲住宅3棟 | ||
| 物件所在地 | 高崎市岩鼻町360-2 | ||
| 物件品目 | 所有者 | ||
| 地目 | 宅地 | ||
| 土地面積 | 218.90㎡(66.21坪)~240.02㎡(72.60坪) | 建物面積 | 103.90㎡(31.43坪)~106.10㎡(32.09坪) |
| 価格 | 2,890万円 | 坪単価 | |
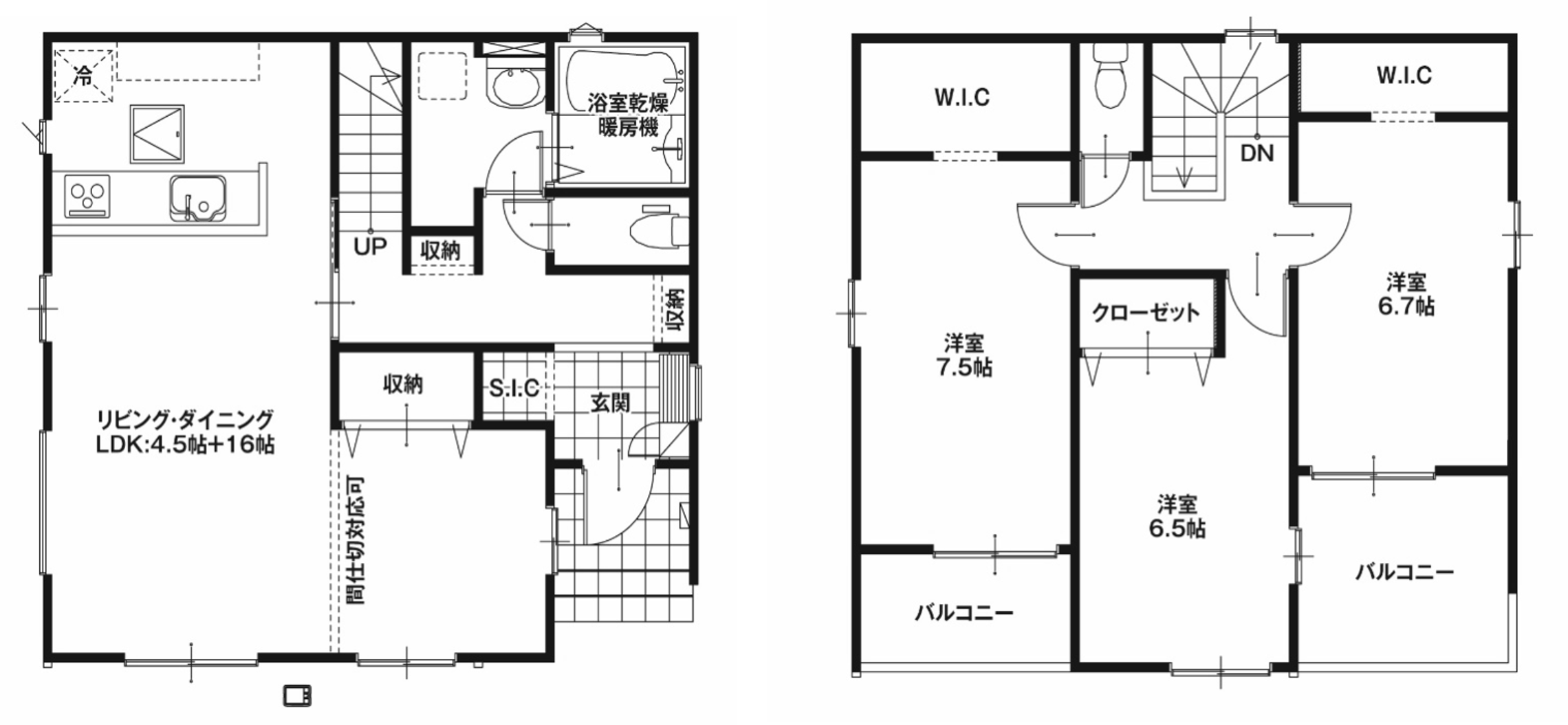
| 築年数 | 2025年12月築予定 | 間取り | 3LDK~4LDK |
| 構造 | 木造2階建 | 都市計画 | 市街化区域 |
| 用途地域 | 第一種住居地域 | 建蔽率/容積率 | 60%/200% |
| 接道 | 南側5.5m~5.7m/北側2.0m~2.9m 公道 | 交通 | JR高崎線『倉賀野駅」』約3,000m |
| 学校区 | 『岩鼻小学校』約1,400m 『矢中中学校』約2,900m |
インフラ | 公営水道 東京電力ほか 個別LPG 公共下水 |
| 取引態様 | 媒介 | ||
| 備考 |
物件ID:20240022 |
||






